відміна
КАТАЛОГ товарів

Укладання плитки під ключ – від 500 грн/м²

Укладання плитки — це не просто «500 грн/м²». Це комплекс послуг, кожна з яких впливає на кінцеву вартість роботи. Багато замовників бачать цифру за квадратний метр, множать її на площу приміщення і очікують саме таку суму. Але у реальності процес набагато складніший.

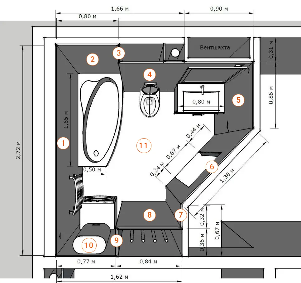
Щоб пояснити, з чого складається реальна вартість укладання плитки, розглянемо приклад ванної кімнати.

Розрахунок наведений орієнтовно — його мета показати логіку, а не точні цифри. Фінальну вартість можна дізнатись лише після огляду об’єкта майстром.

Приклад проекту ванної кімнати для укладання плитки фото
Послуга Всього грн. Ціна К-ть Од. 1 2 3 4 5 6 7 8 9 10 11
Проста порізка 7 330 150 48,87 мп 3,783,502,523,524,22 9,220,644,180,726,54 10,03
Чистий різ 4 012 250 16,05 мп 6,651,902,50 2,502,50
Різ 45° 5 070 300 16,90 мп 1,902,502,502,502,50 2,502,50
Затирка епоксидна 5 401 200 27,01 м2 5,811,520,284,402,15 2,040,82,100,901,93 5,08
Укладання 21 604 800 27,01 м2 5,811,520,284,402,15 2,040,802,100,901,93 5,08
Герметик у шви 2 000 100 20,00 мп
Отвір до 70 мм 1 500 150 10 шт
Отвір >70 мм 200 200 1 шт
Кут епоксидом 2 250 300 7,50 мп
Всього 49 367,70

Розрахунок вартості

Дякуємо, Ваша заявка надіслана.
Ваше Ім'я*:
Ваш номер телефону +38*:
E-mail:
Побажання до розрахунку (колір, розмір...):

Для прикладу вважаємо, що підготовка вже виконана:

  1. - рівна стяжка
  2. - гідроізоляція
  3. - грунтовка
  4. - поверхні готові до роботи

Плитка у прикладі

  1. - На стіни: 600×1200 мм
  2. - На підлогу: 200×1200 мм

Нижче розглянемо ключові послуги, які формують основну частину вартості.

Приклади робіт

Основні роботи, що формують ціну укладання плитки

1. Укладання плитки

Це базова послуга, яку зазвичай беруть за основу при розрахунку. Але її обсяг та складність залежать від:

  1. - формату плитки (чим більша — тим складніше)
  2. - кількості примикань
  3. - рівності площин
  4. - точності малюнку та симетрії

2. Епоксидна затирка

Епоксидна затирка коштує дорожче за цементну, але забезпечує:

  1. - максимальну міцність
  2. - водонепроникність
  3. - захист від грибка
  4. - стабільний колір

Робота з нею складніша, тому її нанесення теж має окрему вартість.

3. Проста порізка

Виконується звичайним плиткорізом і використовується для непомітних зон:

  1. - під стелею
  2. - під плінтус
  3. - в одному з внутрішніх кутів

Це найдешевший вид різу.

4. Чистий різ (болгаркою під 90° з шліфуванням)

Застосовується там, де видно край плитки і потрібна ідеальна лінія:

  1. - один з внутрішніх кутів
  2. - примикання до меблів
  3. - видимі стики

Цей вид різу потребує досвіду та часу, тому коштує дорожче.

5. Різ під 45° (запилювання зовнішніх кутів)

Найдорожчий тип порізки. Використовується для формування акуратних зовнішніх кутів без пластикових кутників.

Це ювелірна робота, що вимагає високої точності.

6. Кут епоксидом

Зовнішній кут можна зробити не тільки під 45°, а й сформувати его епоксидною затиркою.

Результат — гладкий, акуратний та довговічний кут без тріщин.

7. Герметик у шви

Герметик застосовується для внутрішніх кутів, місць прилягання до ванни, душового піддона тощо. Дає еластичний та водостійкий шов.

8. Отвори

Отвори під сантехніку, електрику та комунікації:

  1. - змішувачі
  2. - душові набори
  3. - колектори
  4. - ревізії
  5. - розетки

Кожен отвір — окрема робота зі своєю складністю.

Підсумок

Ціна укладання плитки складається з десятків дрібних операцій.

Формат плитки, види різу, кути, отвори, затирка — усе це впливає на фінальну суму.

Точний розрахунок можливий лише після огляду об’єкта та погодження рішення щодо кожного елемента.

Прайс на укладання плитки та супутні роботи

УКЛАДАННЯ ПЛИТКИ
Розмітка поверхні40 грн/м²
Підбір малюнку80 грн/м²
Сортування плитки500 грн/год
100×100580 грн/м²
200×200500 грн/м²
300×600500 грн/м²
300×900560 грн/м²
600×1200800 грн/м²
800×1600900 грн/м²
300×300500 грн/м²
600×600600 грн/м²
800×800900 грн/м²
1000×1000900 грн/м²
1800×600900 грн/м²
Кабанчик620 грн/м²
Керамопаркет800 грн/м²
Плитка-дошка до 900 мм750 грн/м²
Плитка-дошка до 1200 мм800 грн/м²
Плитка-дошка до 1800 мм850 грн/м²
Плитка >50$1000 грн/м²
Без шва+50%
Гексагон/багатокутники800 грн/м²
Відкос до 600 мм+60%
Проста порізка150 грн/м.п
Чистий різ250 грн/м.п
Радіусний/фігурний різ600 грн/м.п
Різ 45° (керамограніт)300 грн/м.п
Різ 45° (кераміка)300 грн/м.п
Отвір до 70 мм150 грн
Отвір >70 мм200 грн
Молдинг плоский/кутовий200 грн/м.п
Молдинг "мерседес"500 грн/м.п
Фриз / плінтус300 грн/м.п
Декор / панно800 грн
Діагональ / ялинка+20%
Затирка цементна100 грн/м²
Затирка епоксидна200 грн/м²
Кут епоксидом300 грн/м.п
Герметик у шви100 грн/м.п
Шнур під герметик80 грн/м.п
Заповнення напівсухе/пістолет180 грн/м²
Захист плитки (ДВП)50 грн/м²
УКЛАДАННЯ ПЛИТКИ ВЕЛИКОГО ФОРМАТУ
Підйом300 грн/поверх
1800×9001000 грн/м²
1200×12001200 грн/м²
1600×16001600 грн/м²
1000×20001500 грн/м²
1200×24001800 грн/м²
1200×26001800 грн/м²
1200×28001900 грн/м²
1000×30001900 грн/м²
1200×32002000 грн/м²
1500×30001800 грн/м²
1600×32002100 грн/м²
Доплата 10 мм (тонка)+60%
Підрізка проста250 грн/м.п
Заріз 45°300 грн/м.п
Отвір300 грн
Чистий різ зі шліфуванням300 грн/м.п
Затирка епоксид200 грн/м²
Кут епоксидом300 грн/м.п
КОМЕРЦІЙНЕ ОБЛИЦЮВАННЯ
до 300 мм400 грн/м²
до 600 мм420 грн/м²
до 900 мм500 грн/м²
до 1200 мм550 грн/м²
>1200 мм650 грн/м²
Ґрунт 1 шар30 грн/м²
Отвори100 грн
Порізка100 грн/м.п
Затирка цемент50 грн/м²
СХОДИ ТА ВХІДНІ ГРУПИ
Коеф. погодні умови+30%
Східці550 грн/м.п
Підсходинок580 грн/м.п
Радіусні сходи1200 грн/м.п
Вирівнювання300 грн/м²
Гідроізоляція 2 шари350 грн/м²
Затирка цемент140 грн/м²
Затирка цемент+латекс170 грн/м²
МОЗАЇКА ТА БАСЕЙНИ
Підготовчий шар200 грн/м²
Мозаїка900 грн/м²
Радіусна мозаїка1200 грн/м²
Смальта1800 грн/м²
Цементна затирка180 грн/м²
Епоксидна затирка350 грн/м²
Штукатурка/стяжка басейну350 грн/м²
Гідроізоляція басейну350 грн/м²
УКЛАДАННЯ КАМЕНЮ
Граніт/мармур 600×6001000 грн/м²
Сляби великі2500 грн/м²
Відкоси/підвіконня1000 грн/м.п
Сходи камінь1200 грн/м.п
Полірування750 грн/м²
Дикий камінь (піщаник, сланець)900 грн/м²
Соломка кам'яна1300 грн/м²
Просочення/лак170 грн/м²
ПІДГОТОВЧІ РОБОТИ
Виїзд для прорахунку вартості робіт1000 грн
Амортизаційні розходи, від вартості ремонту10%
Обсяг замовлення менше 25 м²+20%
Розвантаження матеріалу1000 грн/т
Підйом матеріалу по сходах (1 поверх)1000 грн/т
Демонтаж штукатурки, стяжки до 30 мм120 грн/м²
Демонтаж фарби150 грн/м²
Демонтаж плитки200 грн/м²
Очищення поверхні30 грн/м²
Шліфування, видалення цементного молочка80 грн/м²
Закладення штроб80 грн/м.п
Ґрунтівка 1 шар40 грн/м²
Армування сіткою80 грн/м²
Штукатурка цементна до 30 мм200 грн/м²
Стяжка цементна до 50 мм200 грн/м²
Наливна підлога200 грн/м²
Вирівнювання клеєм до 10 мм180 грн/м²
Монтаж ГКЛ250 грн/м²
Кладка цегла/піноблок 100 мм250 грн/м²
Акрилова гідроізоляція (1 шар)100 грн/м²
Цементна гідроізоляція (1 шар)120 грн/м²
Двокомпонентна гідроізоляція (1 шар)150 грн/м²
Армування кутів гідрострічкою150 грн/м.п
Гідроманжети (сантехвиводи)150 грн/шт
Ремонт тріщин стяжки150 грн/м.п
Мембрана під теплу підлогу200 грн/м²
Встановлення ванни1500 грн
Ванна на металевому каркасі2000 грн
Панель під ванну (плитка)1600 грн/м.п
Каркас під ванну (під плитку)15000 грн
Боковий каркас ванни5000 грн
Люк ревізійний на магнітах1000 грн
Люк прихований до 600 мм1000 грн
Люк прихований > 600 мм1300 грн
Душовий піддон з бортом10000 грн
Душовий піддон без борта8000 грн
Клавіша змиву під ключ20000 грн
Вимикач прихований (одинарний)5900 грн
Вимикач прихований (подвійний)11900 грн
Розетка прихована (одинарна)5900 грн
Розетка прихована (подвійна)11900 грн
Розетка прихована (потрійна)17500 грн
Вентилятор прихований 1207900 грн
Вентилятор прихований 1005900 грн
ДРІБНИЙ РЕМОНТ
Робота майстра600 грн/год
Робота майстра3500 грн/день
Заміна затірки560 грн/м²
Виїзд майстра3500 грн

* Ціни орієнтовні, уточнюються після огляду об’єкту.

Розрахунок вартості

Дякуємо, Ваша заявка надіслана.
Ваше Ім'я*:
Ваш номер телефону +38*:
E-mail:
Побажання до розрахунку (колір, розмір...):
Акція Отримати знижку на укладання →